- Accueil>
- Entreprise>
- Bureaux>
- Location Bureaux SAINT-NAZAIRE 243 m² - 27418261
Location Bureaux SAINT-NAZAIRE 243 m² Référence : 8261
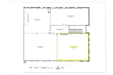
SAINT-NAZAIRE (44) - Zone de Brais CENTURY 21 vous propose A LA LOCATION, au sein d'un ensemble immobilier à construire, un plateau de bureaux de 180 m2 environ de surface utile au 1er étage. Le plateau sera livré sol posé, murs isolés et peints. Bloc sanitaire privé comprenant un point d'eau et WC. Plafonds et luminaires leds posés. Plinthes périphériques (courant fort et faible) posées. Compteur électrique individuel et système de chauffage posés. Possibilité de louer des places de stationnements privatives (500 EUR HT/an/place) Livraison prévue 4T2026 Loyer annuel 41 310 EUR HT provisions pour charges annuelles 3 645 EUR HT Taxe foncière charge preneur Places de stationnements à louer en sus (500 EUR HT/an) Honoraires d'agence en sus Livraison prévue : 4T2026 Réf 8261 Les informations sur les risques auxquels ce bien est exposé sont disponibles sur le site Géorisques : www.georisques.gouv.fr
Loyer 3442.5 € / mois

- Type de bien Bureaux
- Type de transaction Location
- Surface 243 m²
- Localisation SAINT-NAZAIRE